4403 43rd Street N, Saint Petersburg, FL 33714

$649,000
  • 4403 43rd Street N, Saint Petersburg, FL 33714 Main Photo

33 Total Photos [Click to View All]

New to the Market Active
BEDS4 BATHS2 full 1 partial SQUARE FEET2,013 MLS#TB8480654
STATUSActive PROPERTY TYPEResidential - Single Family SUBDIVISIONNOR-MAR

Property Description

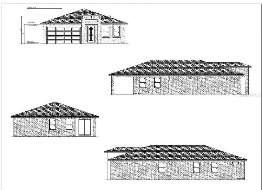
Under Construction. PROGRESS! New photos will be posted as progress moves forward.... HINT**SAVE IT IN FAVORITES TO WATCH THE PROGRESS THROUGH PHOTOS UP TO THE GRAND FINALE.THIS IS YOUR NEXT HOME... No FLOOD insurance required & NO HOA. This Modern home is expected to be completed in June 2026. Its contemporary style invites you to enter through a stylish door where you will discover an open bright split floor plan featuring beautiful vinyl wood style floors, a modern kitchen with oversized island blanketed with a stone countertop which flows like a waterfall down the sides. Additional features include stainless steel matching appliances, a closet pantry for additional storage, recess lighting, & custom vent hood. Imagine the gatherings & meals that can be prepared here. The open GREAT room has a tray ceiling with oversized fan and glass doors that lead you to a private back porch and vinyl fenced in yard, the perfect place to relax and unwind. Double doors lead to a study, a perfect place to have a home office. The rooms have power outlets on the walls ready for the T.V s to be mounted with out additional tv cabinet. Additionally, the master suite has a tray ceiling, an oversized walk-in closet, and an on-suite bathroom with tiled shower, seamless glass doors, modern tub and double sink vanity. Conveniently located near shopping, restaurants, International Airports, Top Rated Beaches, & Down Town St Pete. . Final design and exterior finishes may vary. Inquires welcome for additional information.

4403 43rd Street N | MLS# TB8480654

This single family home located at 4403 43rd Street N, Saint Petersburg, FL 33714 is currently listed for sale with an asking price of $649,000. This property was built in 2026 and has 4 bedrooms and 2 full and 1 partial baths with 2013 sq. ft. 43rd Street N is located in the NOR-MAR subdivision. Search NOR-MAR real estate on www.realty-ex.com today.

Property Features

Property Type: Residential - Single Family
Cooling: Central Air
Fenced: Yes
Garage: 2 car attached
Heating: Central, Electric
Home Style: Florida
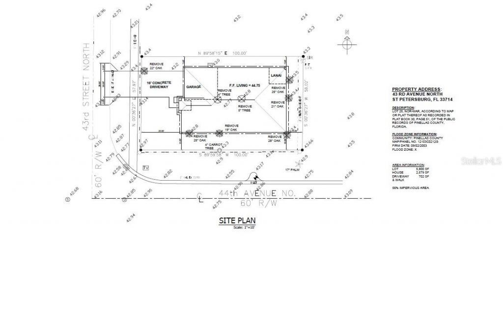
Lot Size: 0.13 Acres
Roof Type: Shingle
Stories: 1.0
Taxes: $1,224
Year Built: 2026

Amenities

Ceiling Fans(s)
High Ceilings
Living Room/Dining Room Combo
Open Floorplan
Split Bedroom
Stone Counters
Walk-In Closet(s)
Lighting
Rain Gutters

Feature Descriptions

Additional Rooms: Inside Utility
Appliances: Dishwasher, Disposal, Microwave, Range, Range Hood, Refrigerator
Builder: Crespo
Days on Site: 6
Directions: From 49th Street S to 46th Ave, East. Continue to 43rd Street, head South. Continue South to NW corner of 43rd Street and 44th Avenue.
Exterior: Block, Stucco
Fencing: Vinyl
Flood Zone Code: x
Flooring: Ceramic Tile, Luxury Vinyl
Foundation: Slab
Home Warranty Y/N: No
Listing Terms: Cash, Conventional, FHA, VA Loan
Lot: Corner Lot
Lot Dimensions: 0.13
Model: 43rd Home
Ownership: Fee Simple
Patio/Porch: Rear Porch
Property Attached Y/N: No
Property Sub-Type: Single Family Residence
Sewer: Public Sewer
Showing Instructions: Appointment Only, See Remarks, ShowingTime
Special Sale Provisions: None
Utilities: Cable Available, Electricity Available, Public, Sewer Connected, Water Available
Vegetation: Trees/Landscaped
Water: Public
Water Access Y/N: No
Zoning: R-4

Room Sizes

Living Room: 16x22
Kitchen: 12x22
Primary Bedroom: 15x15
Bedroom 2: 12x10
Bedroom 3: 11x10
Bedroom 4: 12x10

Listed By / Shown By

Listed By

Agency Name: CENTURY 21 COAST TO COAST
Agency Contact: 727-726-4757

Shown By

Agency Title: Realty Exchange
Agency Phone: 304-523-2225

IDX logo

Estimate Your Payment

Estimated Payment

$ 1,735.68 per month $1,444.39 Principal & Interest $102.00 Property Tax $189.29 Homeowner's Insurance

Change Payment Information

%
years/fixed
yearly
yearly (est.)
(Payments are an estimate and may vary by lender)

Login to My Homefinder

Pixel